Наша команда профессионалов с большим опытом работы выполняет полный спектр работ по ремонту и отделке квартир, начиная от дизайн проекта до наполнения мебелью и техникой.
Более 18 лет делаем квартиры комфортными для жизни
ИТОГО: 3 018 978
ИТОГО: 2 491 280
ИТОГО: 3 251 120
Стоимость материалов - 991 982 руб
Стоимость отделочных работ - 2 026 996 руб
Эко
Стоимость материалов - 832 314 руб
Стоимость отделочных работ - 1 658 966 руб
Минимализм
Стоимость материалов - 1 039 543 руб
Стоимость отделочных работ - 2 211 577 руб
Современный
Предлагаем следующие стили под Ваши размеры:
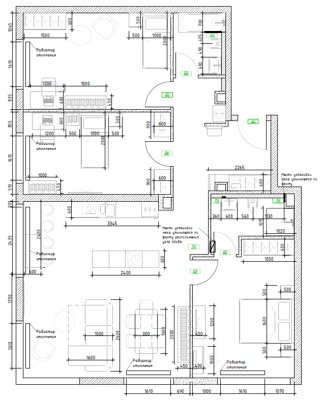
Площадь Вашей квартиры = 113,24 м2
Свой заказ вы можете дополнительно за комплектовать:
- Подсветка врезная или накладная
- Стеновая панель на выбор 5 декоров
- Дополнительный ящик
- Ручка Gola ( современный вариант скрытой ручки)
- Ручка накладная для открывания верхних модулей
- Раковина
- Смеситель
- Услуга по встраиванию и подключению техники
(пакетное предложение для Вашей квартиры)
Кухня-гостиная
Корпус: ЛДСП Kronospan (5 декоров на выбор)
Фасады: МДФ ЭМАЛЬ (5 декоров на выбор)
Столешница: влагостойкая ДСП облицованная декоративным покрытием Slotex
Фурнитура:
- Петли Blum;
- Ящики тандембокс Blum;
- лоток для столовых приборов;
- гигиенический поддон в модуле под мойкой;
- сушка - базовая система для хранения посуды (конструкция из металлических прутьев с поддоном для воды).
- Ручки на нижние модуля и пеналы
Цоколь мдф в цвет фасада
Фасады: МДФ ЭМАЛЬ (5 декоров на выбор)
Столешница: влагостойкая ДСП облицованная декоративным покрытием Slotex
Фурнитура:
- Петли Blum;
- Ящики тандембокс Blum;
- лоток для столовых приборов;
- гигиенический поддон в модуле под мойкой;
- сушка - базовая система для хранения посуды (конструкция из металлических прутьев с поддоном для воды).
- Ручки на нижние модуля и пеналы
Цоколь мдф в цвет фасада
Кухня в стиле PREMIUM
Корпус: ЛДСП Kronospan (5 декоров на выбор)
Фасады: МДФ ПВХ (5 декоров на выбор)
Столешница: влагостойкая ДСП облицованная декоративным покрытием Slotex
Фурнитура:
- Петли Blum;
- Ящики тандембокс Firmax;
- лоток для столовых приборов;
- гигиенический поддон в модуле под мойкой;
- сушка - базовая система для хранения посуды (конструкция из металлических прутьев с поддоном для воды).
- Ручки на нижние модуля и пеналы
Цоколь мдф в цвет фасада
Фасады: МДФ ПВХ (5 декоров на выбор)
Столешница: влагостойкая ДСП облицованная декоративным покрытием Slotex
Фурнитура:
- Петли Blum;
- Ящики тандембокс Firmax;
- лоток для столовых приборов;
- гигиенический поддон в модуле под мойкой;
- сушка - базовая система для хранения посуды (конструкция из металлических прутьев с поддоном для воды).
- Ручки на нижние модуля и пеналы
Цоколь мдф в цвет фасада
Кухня в стиле STANDART
3345 мм х 2400 мм х 1900 мм (Н)
Кухня класса комфорт. Вся техника встроена в модуля и пеналы. Верхние модуля высотой до 1000 мм. Оптимизирована по цене за счет подбора материалов и фурнитуры. Гарантийный срок от 5 лет!
В стиле STANDART
213 105 руб.
В стиле PREMIUM
Одноуровневая кухня -
249 644 руб.
Кухни-гостиные разработанные для Вашей квартиры
3345 мм х 2400 мм х 2800 мм (Н)
Кухня класса комфорт. С увеличенными верхними базами до потолка. Качественная фурнитура. Гаранития от 5 лет!
В стиле STANDART
232 731 руб.
В стиле PREMIUM
Одноуровневая кухня до потолка -
272 071 руб.
За счет верхнего третьего ряда модулей, кухня имеет максимальное количеством зон для хранения. Верхние базы до потолка. Качественная фурнитура. Гарантия от 5 лет!
В стиле STANDART
284 371 руб.
В стиле PREMIUM
3345 мм х 2400 мм х 2800 мм (Н)
Двухуровневая кухня -
302 053 руб.
Цветовые решения для кухни
+ Ручка Gola
22 990 руб.
Кухня идеально подходит для квартир под сдачу в аренду. С использованием антивандальных материалов. Легко моется. Надежная в эксплуатации, за счет качественной фурнитуры. Высота фасадов 920 мм.
Гаранитийный срок от 5 лет!
Гаранитийный срок от 5 лет!
В стиле STANDART
180 000 руб.
В стиле PREMIUM
2400мм, общая высота 2420 мм
Кухня без пеналов -
192 960 руб.
Корпус: ЛДСП Kronospan
Фасады: МДФ с декором на выбор
Фасады: МДФ с декором на выбор
2. Остров
Специальный профиль с внутренним закруглением, который устанавливается за фасадом в специальный вырез в корпусе. Благодаря этому профилю фасад остается нетронутым и без видимых ручек. Ручками в таком варианте исполнения является сам фасад. При открытии ящика вы беретесь непосредственно за торец фасада
1. Ручка Gola
ИНФОРМАЦИЯ О КОМПЛЕКТАЦИИ
(индивидуальное предложение для Вашей квартиры)
Типология Модульный диван
Структура Плотный пенополиуретан Ножки Пластик или крашеный металл
Структура Плотный пенополиуретан Ножки Пластик или крашеный металл
60 000 руб.
5. Диван PUFFY SOFA NAP
Размер: высота 118 см,
длина шнура: 180 см, диаметр: 22 см
Материалы: алюминий, латунь, сталь, порошковое покрытие Цвет: черный
длина шнура: 180 см, диаметр: 22 см
Материалы: алюминий, латунь, сталь, порошковое покрытие Цвет: черный
70 000 руб.
4. Торшер AJ FLOOR
Размер: 56×58×86
Страна: ДАНИЯ
Дизайнер: GamFratesi Форма: Закруглённая
Страна: ДАНИЯ
Дизайнер: GamFratesi Форма: Закруглённая
38 400 руб.
3. Стулья UNIKA HANS
Габариты:
⌀120 x h75 см
⌀150 x h75 см
260 x 110 x h75 см
другие размеры
⌀120 x h75 см
⌀150 x h75 см
260 x 110 x h75 см
другие размеры
материалы: Кварц, цвет Графит
комплектация: Сифон, комплект креплений.
гарантия: 5 лет.
комплектация: Сифон, комплект креплений.
гарантия: 5 лет.
40 034 руб.
2. Обеденный стол POLTRONA
FRAU MESA DUE
FRAU MESA DUE
9 050 руб.
6. Кофейный столик ANDROGYNE
SIDE TABLE
SIDE TABLE
30160 руб.
- Высота:46 см
- Диаметр:63 см
- Количество ламп:12 × 4 Вт
- Цвет абажура:белый
- Цвет корпуса:черный
- Тип цоколя: G9
- Материал корпуса: металл
- Материал абажура: стекло
1. Люстра APOLLO CHANDELIER
Кофейный столик ANDROGYNE SIDE TABLE
Торшер AJ FLOOR
Диван PUFFY SOFA NAP
Стулья UNIKA HANS
Обеденный стол POLTRONA FRAU MESA DUE
Люстра APOLLO CHANDELIER
Кухня-гостиная
Встроенные светильник и закарнизная подсветка
с отделкой
20 000 руб.
13. Встроенные светильник
и закарнизная подсветка
и закарнизная подсветка
Форма:
Лесенка
Высота (мм): 800
Ширина (мм): 532
Межосевое расстояние (мм): 500
Высота (мм): 800
Ширина (мм): 532
Межосевое расстояние (мм): 500
10 000 руб.
11. Полотенцесушитель электрический Terminus
Высота излива, см 8.5
Длина излива, см 12.4
Управление: Рычажное
Материал: Латунь
Длина излива, см 12.4
Управление: Рычажное
Материал: Латунь
20 100 руб.
10. Смеситель для раковины Grohe
Ширина: 250 мм
Высота: 938 мм
Длина: 552 мм
Цвет: Черный матовый
Материал: Латунь
Высота: 938 мм
Длина: 552 мм
Цвет: Черный матовый
Материал: Латунь
47 600 руб.
9. Душевая стойка с изливом Grohe
Тип монтажа панели смыва: Горизонтальный или вертикальный
Режимы смыва: 3 режима смыва: 2-х объёмный, старт/стоп или непрерывный
Режимы смыва: 3 режима смыва: 2-х объёмный, старт/стоп или непрерывный
с отделкой
5 000 руб.
8. Клавиша смыва GROHE
7 500 руб.
12. Зеркало с подсветкой
50 000 руб.
Ширина в мм: 375
Высота в мм: 350
Глубина в мм: 560
Высота в мм: 350
Глубина в мм: 560
7. Унитаз подвесной Grohe
Зеркало с подсветкой
Смеситель для раковины Grohe
Полотенцесушитель электрический Terminus
Душевая стойка с изливом Grohe
Клавиша смыва GROHE
Унитаз подвесной Grohe
Санузел
Для создания индивидуального стиля Вы можете изменить любое предложенное нами решение, либо предложить свой проект.
Изготовим мебель ПО ИНДИВИДУАЛЬНЫМ РАЗМЕРАМ
- Кухни
- Шкафы
- Гардеробные
- Мебель для ванных комнат
- Прихожие
- Библиотеки и т.д.
Мы изготавливаем:
Получите персональное предложение по специальной программе для Вашегго ЖК
Фабрика MONZA предлагает производство мебели в Москве и области.
Оставьте заявку, и мы свяжемся с Вами для ответа на все Ваши вопросы